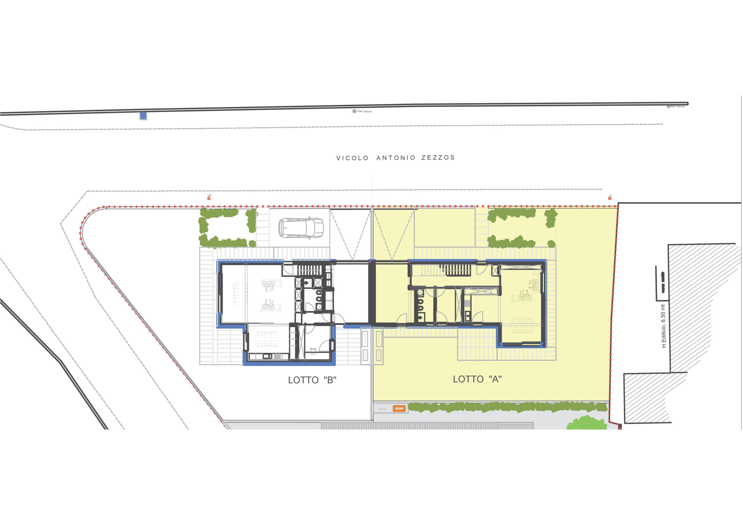
Trattasi di un intervento residenziale con elevate qualità architettoniche e prestazionali, con carattere di esclusività, in cui è prevista la realizzazione di 2 unità immobiliari residenziali indipendenti, disposte ciascuna su due piani, con garage interno, posti auto privati, situate in prossimità del centro storico di Treviso e di tutti i servizi.
Ogni unità immobiliare ha il proprio accesso carraio e pedonale indipendente, vanta un ampio giardino privato ed è caratterizzata da ambienti confortevoli pensati a misura di famiglia.
Attraverso un’attenta progettazione edilizia ed impiantistica, volta a massimizzare il risparmio energetico, il sistema edificio si caratterizza per l’opportunità di ridurre sensibilmente i consumi con l’obbiettivo di aumentarne il rendimento.
Classe energetica A4 ed impianto fotovoltaico.
Le unità si sviluppano su due livelli e sono composte da zona giorno, cucina, 3 camere, 3 bagni, lavanderia, garage, posto auto esterno e giardino privato. Possibile la personalizzazione degli spazi e delle finiture.
Vendita bivilla
Vendita bivilla
Da 4
3
210 MQ
Si
SI
SI
SI
/
2 ville
Terra e Primo
In Costruzione
Arch. Nicoletta Sartorato - te. 0422.788005
Treviso, via Zezzos

Consumo di energia “quasi zero”, come da direttiva U.E. relativa agli edifici di nuova costruzione.

Architetti, tecnici ed artigiani selezionati negli anni, illustrano e consigliano quali siano le soluzioni architettoniche e d’arredo Più affidabili e di maggior tendenza.

Coniugando le esigenze e l’evoluzione dell’edilizia con il rispetto dell’ambiente, del territorio e della salute dell’uomo.

Un prodotto qualitativamente ineccepibile, che solo personale sapiente ed affidabile sa realizzare.
Lasciaci i tuoi recapiti e ti contattiamo noi.